86-571-83513788 |    inquiry@putianhouse.com
 HOME  |  360° FACTORY VR  |    CONTACTS  |    INQUIRY NOW
Home » News1 » Container Homes » Education Building » Container School in Papua New Guinea
Who We Are

Container School in Papua New Guinea

1. Project No.:PT160435

2. Date:Year 2016

3. Location:PNG

4. Scale:20 units 8*20ft container module +6 units 8*16ft container module

5. Category:Container house

6. Function:Classroom

7. Characteristics:two-floor modular container houses, AU standard electrical.

 

Papua New Guinea Container School


Project Design


PTH owns 100+ architect and engineers at home and abroad, to provide customized design service for client with different requirements. We use the relevant information data of construction projects as the basis of the model to build the building model, and simulate the real information of the building through digital information simulation. 


At present, we have finished the Revit research and development of company’s products, laying a solid foundation to finish design effectively and accurately and also presenting details and three dimensional effects of our company’s products to customers. 


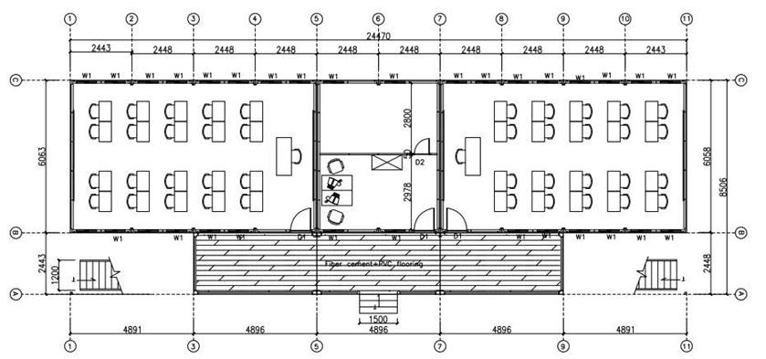
Project Features: The client is the main supplier in the education system in PNG, in charge of the supply of textbooks, education system and education facilities. This project is the first order from this client, it is a two-floor classroom made of container modules and additional wall claddings. The windows are glass louver. It includes 50cm steel stud under the container house. The electrical comply with AU standard. The container house is easy to install and can be promoted quickly throughout the country.


Container Camp in Philippine 1


Design


The preliminary design is made in accordance to client’s requirement and local building code. After getting the permission by local authority, PTH will do the shop drawing for production.


Papua New Guinea Container School 6



Papua New Guinea Container School 7


Papua New Guinea Container School 8



Papua New Guinea Container School 9



Production Delivery


PROCUREMENT: PTH has a mature procurement supply chain, including product raw materials, kitchen andbathroom accessories, home equipment and other supporting facilities. Each year, PTH conducts quality assessments of suppliers, resolutely rejects unqualified suppliers, and guarantees the quality of products from the source.


PRODUCTION: PTH owns hundreds of fully automatic mechanized production line, which ensures high production efficiency and timely delivery. In the manufacturing process, PTH can provide production progress reports to customers through pictures and video. PTH has a professional quality inspection team which takes strict quality control in each process, and make sure defect product never be delivered to client.


TRANSPORTATION: PTH, who has more than 20 years of international logistics experience. can provide customers with the best transportation routes, customs declaration, commodity inspection and other services, and truly realizes "door to door."


Kazakhstan container camp 43_


Kazakhstan container camp 35_


Production Pictures


Quality is the life of a enterprise and the foundation of sustainable development. PTH strictly follows the ISO9000 quality system and make quality control in each process from material procurement to finish product delivery.


For the outsourcing raw material and accessories, it is reported to the ICQC team for inspection. ICQC will inspect according to “Raw Material Inspection Regulations”, make sure the material technical specs and quality meets GB standard, then upload the inspection record, QC document and test report to ERP system.


Kazakhstan container camp 6


PTH makes random inspection system for the manufacturing process. IPQC makes daily random inspection according to the quality requirement of each order, so as to avoid defect products.


The production team also set up process quality report system. Only those qualified products can be transferred to the next process.


Project production scenarios

Project production scenarios 1

Project production scenarios 2

Project production scenarios 3


Package & Loading


PTH makes the most reasonable package plan according to the structure characteristics and quality requirement. The modular package design of the spare part effectively reduce the package volume. The spare parts of each module is packed in a separate package, these small package modular combination ensures a easy transportation and installation, which in return makes the loading and unloading much easier, and greatly reduces labor cost.


Papua New Guinea Container School 1


Installation


PTH will provide complete and detailed installation drawings for the product. PTH has professional photography and post-production personnel who can provide installation videos for the product and intuitively demonstrate the installation steps and installation details of the product. 


PTH owns on-site installation guidance experience for dozens of projects such as Mozambican light steel villa resorts, Chilean container camps, etc. It can provide EPC construction services and technical guidance according to the needs of customers to ensure the smooth and safe construction of the houses required by customers and realize real "Check-in".


Papua New Guinea Container School 4Papua New Guinea Container School 3Papua New Guinea Container School 2


Customer Feedback


We use BIM system to manage and operate the whole project. For the maintenance, PTH provide online technical support or maintenance service on the site per client requirement. 


This project is made of our regular container modules, no special requirement and problem during construction. We have cooperation with client for other classroom projects.



Papua New Guinea Container School 5






Rutang ZHANG

I am Rutang Zhang, a seasoned expert in the field of integrated housing with a wealth of experience spanning over 30 years. I have had the privilege of contributing to the success of numerous projects in more than 120 countries and regions. My expertise lies in navigating the intricacies of the integrated housing industry, and I am proud to have played a significant role in delivering successful outcomes across diverse global contexts. From conceptualization to execution, my commitment to excellence has been a driving force in achieving results that meet the unique requirements of each project.
 Tel: +86 180 5752 0109
 Email: cs@putianhouse.com

What We Do

Our Divisions

Project & Case Studies

Send us a Message
Copyright  © 2008-2017 Zhejiang Putian Integrated Housing Co., Ltd. All rights reserved.  Sitemap  Container House Projects